Attention aux piratages ! Gardez à l’esprit qu’aucune de nos agences ne vous demandera de payer pour vous faire visiter un bien. En cas de doutes, contacter directement nos agences par téléphone.

3
Estimer mon bien tæ
Accueil > Acheter >

Vente appartement 3 pièces 59.4 m² à Boulogne-Billancourt (92100)

< Revenir à la page précédente
< Précédente Annonce Suivante >

Appartement 3 pièces à vendre

Boulogne-Billancourt (92100) | Réf. : 225888 | N° 225888

Prix de vente : 540 000 €

Honoraires à charge vendeur

Calcul du financement

S
2 chambres

£
1 salle d'eau

7
59.4 m²

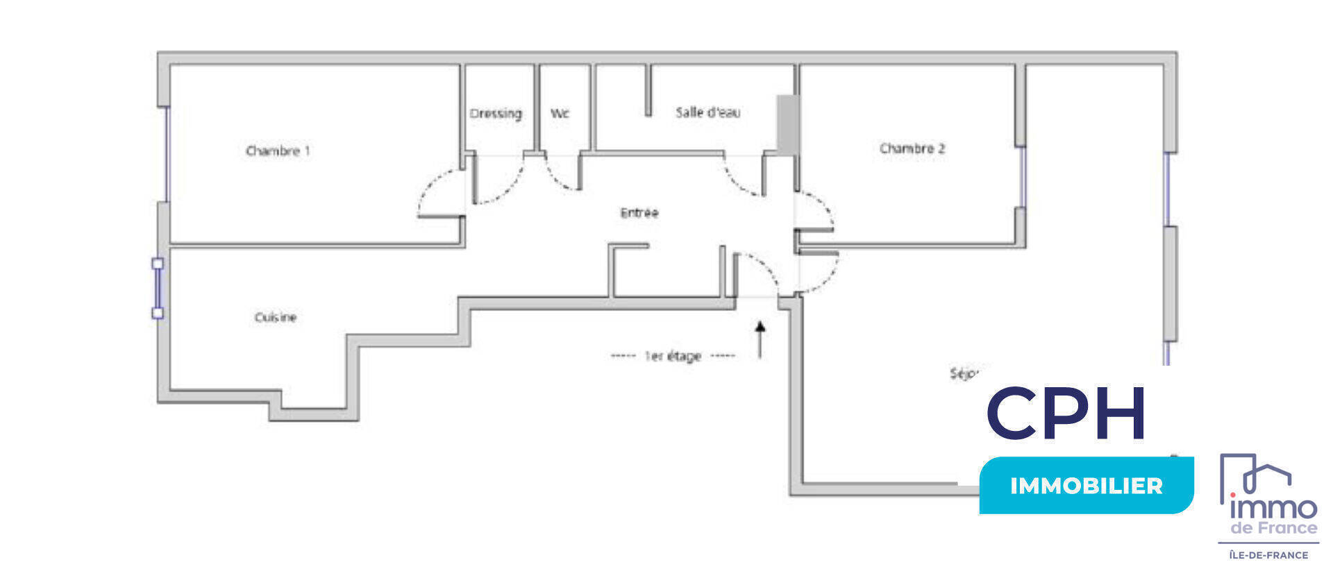
L'agence CPH IMMOBILIER vous propose un appartement 3 pièces idéalement placé, dans une copropriété avec gardienne, bien entretenue, avec ascenseur, chauffage collectif, au pied du métro Ligne 10 " Station BOULOGNE JEAN JAURES", à proximité des commerces (boutiques et marché), des écoles et collège, à deux pas du Parc Edmond de Rothschild et du Bois de Boulogne.
Cet appartement traversant et lumineux propose un agencement optimisé comprenant: une entrée avec un coin bureau et un dressing, un séjour en L orienté SUD-OUEST, une cuisine séparée aménagée, un WC séparé, une salle d'eau, deux chambres, et une cave en sous-sol.

Possibilité de louer un box dans la résidence.

N'hésitez pas à le visiter rapidement !

IDEAL 1er ACHAT ou PIED A TERRE !

COUP DE COEUR ASSURE !

Annonce proposée par Jean-Louis URZANQUI - Agence CPH Immobilier PARIS 12

Montant estimé des dépenses : entre 840 euros et 1.160 euros (années de référence 2021-2022 et 2023)
Logement à  consommation énergétique : Classé D
Les informations sur les risques auxquels ce bien est exposé sont disponibles sur le site Géorisques : www.georisques.gouv.fr

Réf.: 225888
Copropriété de 148 lots - dont 51 lots habitation. (Pas de procédure en cours).

Charges annuelles : 3706 euros.
Surface habitable : 59.4 m²
Surface séjour : 21.23 m²
Type chauffage : Collectif
Taxe foncière : 621 €

Infos copropriété

Nbre de lots : 148
Charges prévisionnelles : 3 706 € / an
Les informations sur les risques auxquels ce bien est exposé sont disponibles sur le site Géorisques : www.georisques.gouv.fr

Diagnostic de performance énergétique

D
v Date de réalisation : 21/10/2025
Classe énergie
D
176 kWh/m².an
Classe climat
D
37 kg CO2/m².an

Estimation des coûts annuels d’énergie du logement
Entre 840 € et 1 160 € par an
Prix moyens des énergies indexés sur l'année 0 (abonnements compris)

Prix de vente : 540 000 €

Honoraires à charge vendeur

Calcul du financement

S
2 chambres

£
1 salle d'eau

7
59.4 m²

Nous appeler
Abonnez-vous à nos offres spéciales investisseurs

Localisation & services de proximité

Biens similaires

Vente appartement studio 1 pièce 25.87 m² à Boulogne-Billancourt (92100) Exclusivité

197 000 € - 1 chambre - Boulogne-Billancourt

Appartement - 1 pièce
Boulogne-Billancourt

Prix de vente : 197 000 €

Honoraires à charge vendeur

Ajouter à ma selection
Appartement - 1 pièce
Boulogne-Billancourt (92100)

Nous contacter pour ce bien
Laissez-nous vos coordonnées

J'envisage aussi de mettre un bien à la vente

Obtenir une estimation
J’accepte de recevoir des informations sur l’immobilier, les nouvelles réglementations et les nouvelles offres et produits personnalisés de IMMO de France Paris**.

Si vous cochez non, vous indiquez que vous ne souhaitez pas recevoir de lettre d’information sur l'actualité de l’immobilier, les offres et produits du réseau IMMO de France

En cliquant sur Envoyer vous acceptez de recevoir des informations concernant le bien présenté ci-dessus et des offres similaires susceptibles de vous intéresser.

*Champs obligatoires
**Recueil de vos informations personnelles afin de pouvoir gérer la gestion de la relation client et apporter conseils et informations complémentaires au niveau de la marque IMMO de France Paris île de France et le cas échéant au niveau des partenaires et prestataires. En application de la loi Informatique et Libertés du 6 janvier 1978 modifiée et du règlement général sur la protection des données, vous disposez de droits sur vos données personnelles. Il s’agit : du droit d’accéder à vos données personnelles, du droit de les rectifier et du droit de demander l’effacement de vos données personnelles. Vous disposez aussi du droit de vous opposer au traitement de vos données personnelles, du droit de limiter le traitement de vos données personnelles, du droit à la portabilité de vos données personnelles et du droit de définir le sort de vos données après votre décès. Pour exercer ces droits, vous pouvez adresser votre demande au délégué à la protection des données d’Immo de France Paris-Île de France par email dpo.pidf@immodefrance.com ou par courrier, à Immo de France Paris-Île de France - Siège 67-69 boulevard Bessieres CS 35260 75176 Paris cedex 17, accompagnée d’un justificatif d'identité. En cas d'insatisfaction, vous pouvez adresser une réclamation à la CNIL. Vous avez le droit de vous opposer au démarchage téléphonique en inscrivant gratuitement votre numéro de téléphone fixe / mobile sur le site www.bloctel.gouv.fr ou par courrier à l’adresse suivante : Société Opposetel, Service Bloctel, 6 rue Nicolas Siret, 10 000 Troyes. Pour plus d'informations consulter nos Mentions légales et notre Politique de confidentialité

Nous vous accompagnons pour réaliser
au mieux votre projet immobilier

IMMO de France Île-de-France Paris 18

104 rue Ordener

75018 - Paris 18e Arrondissement

Horaires, équipes Nous appeler Nous contacter Localiser l'agence
t Alerte mail 4 Ma sélection j Simulateur de prêt
cookie