Attention aux piratages ! Gardez à l’esprit qu’aucune de nos agences ne vous demandera de payer pour vous faire visiter un bien. En cas de doutes, contacter directement nos agences par téléphone.

3
Estimer mon bien tæ
Accueil > Acheter >

Vente appartement 3 pièces 49.22 m² à Paris 12e Arrondissement (75012)

< Revenir à la page précédente
< Précédente Annonce Suivante >

Appartement 3 pièces à vendre

Paris 12e Arrondissement (75012) | Réf. : 225931 | N° 225931

Prix de vente : 418 000 €

Honoraires à charge vendeur

Calcul du financement

S
2 chambres

U
1 salle de bain

7
49.22 m²

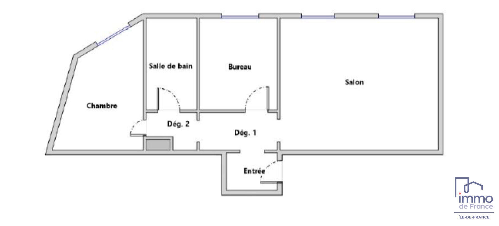
Dans copropriété bien entretenue, au pied des commerces, à deux pas des transports, à proximité du Bois de Vincennes et du parc de Bercy, CPH IMMOBILIER vous propose cet appartement 3 pièces, lumineux, en bon état, sans perte de place, comprenant : une entrée, un séjour avec grand placard, une cuisine aménagée-équipée ouverte sur le séjour, une salle de bains avec WC et un coin buanderie, deux chambres dont une pouvant être utilisée comme bureau ou chambre d'enfant, et une cave en sous-sol.

IDEAL 1er ACHAT ou PIED A TERRE !

COUP DE COEUR ASSURE !

N'HESITEZ PAS A LE VISITER RAPIDEMENT !

Annonce proposée par Jean-Louis URZANQUI - Agence CPH Immobilier PARIS 12

Montant estimé des dépenses : entre 1.590 euros et 2.180 euros (années de référence 2021-2022 et 2023)
Logement à  consommation énergétique : Classé F
Les informations sur les risques auxquels ce bien est exposé sont disponibles sur le site Géorisques : www.georisques.gouv.fr

Réf. Mandat: N°225931


Copropriété de 33 lots - dont 27 lots habitation. (Pas de procédure en cours).

Charges annuelles : 1141 euros.
Surface habitable : 49.22 m²
Surface séjour : 23.8 m²
Type chauffage : Individuel
Taxe foncière : 731 €

Infos copropriété

Nbre de lots : 33
Charges prévisionnelles : 1 141 € / an
Les informations sur les risques auxquels ce bien est exposé sont disponibles sur le site Géorisques : www.georisques.gouv.fr

Diagnostic de performance énergétique

F
v Date de réalisation : 14/09/2025
Classe énergie
F
418 kWh/m².an
Classe climat
C
13 kg CO2/m².an
Logement à consommation énergétique excessive

Estimation des coûts annuels d’énergie du logement
Entre 1 590 € et 2 180 € par an
Prix moyens des énergies indexés sur l'année 0 (abonnements compris)

Prix de vente : 418 000 €

Honoraires à charge vendeur

Calcul du financement

S
2 chambres

U
1 salle de bain

7
49.22 m²

Nous appeler
Abonnez-vous à nos offres spéciales investisseurs

Localisation & services de proximité

Biens similaires

Vente stationnement parking / box à Paris 12e Arrondissement (75012)

34 000 € - Paris 12e Arrondissement

Stationnement
Paris 12e Arrondissement

Prix de vente : 34 000 €

Honoraires à charge vendeur

Ajouter à ma selection
Stationnement
Paris 12e Arrondissement (75012)
Vente stationnement parking / box à Paris 12e Arrondissement (75012)

23 000 € HAI - Paris 12e Arrondissement

Stationnement
Paris 12e Arrondissement

Prix de vente : 23 000 € HAI HAI

Honoraires à charge acquéreur

Ajouter à ma selection
Stationnement
Paris 12e Arrondissement (75012)
Vente appartement 2 pièces 36.09 m² à Paris 12e Arrondissement (75012) CALMEBUS/METRO/TRAMWAY

315 000 € - 1 chambre - Paris 12e Arrondissement

Appartement - 2 pièces
Paris 12e Arrondissement

Prix de vente : 315 000 €

Honoraires à charge vendeur

Ajouter à ma selection
Appartement - 2 pièces
Paris 12e Arrondissement (75012)

Nous contacter pour ce bien
Laissez-nous vos coordonnées

J'envisage aussi de mettre un bien à la vente

Obtenir une estimation
J’accepte de recevoir des informations sur l’immobilier, les nouvelles réglementations et les nouvelles offres et produits personnalisés de IMMO de France Paris**.

Si vous cochez non, vous indiquez que vous ne souhaitez pas recevoir de lettre d’information sur l'actualité de l’immobilier, les offres et produits du réseau IMMO de France

En cliquant sur Envoyer vous acceptez de recevoir des informations concernant le bien présenté ci-dessus et des offres similaires susceptibles de vous intéresser.

*Champs obligatoires
**Recueil de vos informations personnelles afin de pouvoir gérer la gestion de la relation client et apporter conseils et informations complémentaires au niveau de la marque IMMO de France Paris île de France et le cas échéant au niveau des partenaires et prestataires. En application de la loi Informatique et Libertés du 6 janvier 1978 modifiée et du règlement général sur la protection des données, vous disposez de droits sur vos données personnelles. Il s’agit : du droit d’accéder à vos données personnelles, du droit de les rectifier et du droit de demander l’effacement de vos données personnelles. Vous disposez aussi du droit de vous opposer au traitement de vos données personnelles, du droit de limiter le traitement de vos données personnelles, du droit à la portabilité de vos données personnelles et du droit de définir le sort de vos données après votre décès. Pour exercer ces droits, vous pouvez adresser votre demande au délégué à la protection des données d’Immo de France Paris-Île de France par email dpo.pidf@immodefrance.com ou par courrier, à Immo de France Paris-Île de France - Siège 67-69 boulevard Bessieres CS 35260 75176 Paris cedex 17, accompagnée d’un justificatif d'identité. En cas d'insatisfaction, vous pouvez adresser une réclamation à la CNIL. Vous avez le droit de vous opposer au démarchage téléphonique en inscrivant gratuitement votre numéro de téléphone fixe / mobile sur le site www.bloctel.gouv.fr ou par courrier à l’adresse suivante : Société Opposetel, Service Bloctel, 6 rue Nicolas Siret, 10 000 Troyes. Pour plus d'informations consulter nos Mentions légales et notre Politique de confidentialité

Nous vous accompagnons pour réaliser
au mieux votre projet immobilier

IMMO de France Île-de-France Paris 18

104 rue Ordener

75018 - Paris 18e Arrondissement

Horaires, équipes Nous appeler Nous contacter Localiser l'agence
t Alerte mail 4 Ma sélection j Simulateur de prêt
cookie