Attention aux piratages ! Gardez à l’esprit qu’aucune de nos agences ne vous demandera de payer pour vous faire visiter un bien. En cas de doutes, contacter directement nos agences par téléphone.

3
Estimer mon bien tæ
Accueil > Acheter >

Vente appartement 4 pièces 86.45 m² à Pontoise (95300) Louvrais

< Revenir à la page précédente
< Précédente Annonce Suivante >

Appartement 4 pièces à vendre

Pontoise (95300) - Louvrais | Réf. : PRVAP13840213249

Prix de vente : 244 000 €

Honoraires à charge vendeur

Calcul du financement

S
3 chambres

U
1 salle de bain

7
86.45 m²

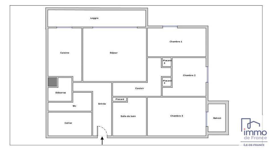
Cet appartement avec 3 chambres sur le territoire de Pontoise se trouve au 5ème étage avec ascenseur. Ce type d'habitation plaira certainement à votre petite famille. Contactez dès à présent l'agence immobilière CERGY - CPH si vous voulez voir ce bien. Propriété comprenant un coin salon de 17m2, 3 chambres, un espace cuisine et une salle de bain. Sa surface intérieure mesure 86.45m2 selon la loi Carrez. Ce domicile vous fait bénéficier d'un espace de stockage en sous-sol. Le calme du lieu est assuré grâce aux fenêtres à double vitrage. Dehors, l'appartement s'accompagne d'une grande logia de 7,4m2 et d'un charmant balcon occupant une surface de 3.64m2. Une place de parking privative complète le lot.
Montant estimé des dépenses annuelles d'énergie pour un usage standard : entre 700 € et 990 € / Année de référence 2023 (nouveau diagnostic) Agence CPH Cergy - Philétas Rosnel
Surface habitable : 86.45 m²
Surface séjour : 17 m²
Surface carrez : 86.45 m²
Type chauffage : Collectif
Taxe foncière : 2 209 €

Infos copropriété

Nbre de lots : 958
Charges prévisionnelles : 1 418 € / an

Diagnostic de performance énergétique

C
v Date de réalisation : 28/07/2025
Classe énergie
B
106 kWh/m².an
Classe climat
C
22 kg CO2/m².an

Estimation des coûts annuels d’énergie du logement
Entre 700 € et 990 € par an
Prix moyens des énergies indexés sur l'année 2023 (abonnements compris)

Prix de vente : 244 000 €

Honoraires à charge vendeur

Calcul du financement

S
3 chambres

U
1 salle de bain

7
86.45 m²

Nous appeler
Abonnez-vous à nos offres spéciales investisseurs

Informations sur Pontoise

Pontoise a été érigée en tant que ville d’art et d’histoire depuis 2006. Elle dévoile ses trésors grâce à ses paysages où l’histoire se mêle à la quiétude de la campagne. La ville est dotée de trois lignes de bus et d’une liaison ferroviaire vers Paris. Cette position stratégique offre un accès facile à Paris, à la Normandie et dans le nord. Les rives paisibles de l’Oise et les espaces verdoyants lui confèrentnt une touche de sérénité, créant des paysages paisibles propices à la détente.  

Localisation & services de proximité

Biens similaires

Appartement - 5 pièces
Pontoise (95300)
Vente appartement 3 pièces 62.77 m² à Pontoise (95300) MaRADAS

189 000 € - 2 chambres - Pontoise

Appartement - 3 pièces
Pontoise

Prix de vente : 189 000 €

Honoraires à charge vendeur

Ajouter à ma selection
Appartement - 3 pièces
Pontoise (95300)
Vente appartement 4 pièces 76 m² à Pontoise (95300)

315 000 € - 3 chambres - Pontoise

Appartement - 4 pièces
Pontoise

Prix de vente : 315 000 €

Honoraires à charge vendeur

Ajouter à ma selection
Appartement - 4 pièces
Pontoise (95300)

Nous contacter pour ce bien
Laissez-nous vos coordonnées

J'envisage aussi de mettre un bien à la vente

Obtenir une estimation
J’accepte de recevoir des informations sur l’immobilier, les nouvelles réglementations et les nouvelles offres et produits personnalisés de IMMO de France Paris**.

Si vous cochez non, vous indiquez que vous ne souhaitez pas recevoir de lettre d’information sur l'actualité de l’immobilier, les offres et produits du réseau IMMO de France

En cliquant sur Envoyer vous acceptez de recevoir des informations concernant le bien présenté ci-dessus et des offres similaires susceptibles de vous intéresser.

*Champs obligatoires
**Recueil de vos informations personnelles afin de pouvoir gérer la gestion de la relation client et apporter conseils et informations complémentaires au niveau de la marque IMMO de France Paris île de France et le cas échéant au niveau des partenaires et prestataires. En application de la loi Informatique et Libertés du 6 janvier 1978 modifiée et du règlement général sur la protection des données, vous disposez de droits sur vos données personnelles. Il s’agit : du droit d’accéder à vos données personnelles, du droit de les rectifier et du droit de demander l’effacement de vos données personnelles. Vous disposez aussi du droit de vous opposer au traitement de vos données personnelles, du droit de limiter le traitement de vos données personnelles, du droit à la portabilité de vos données personnelles et du droit de définir le sort de vos données après votre décès. Pour exercer ces droits, vous pouvez adresser votre demande au délégué à la protection des données d’Immo de France Paris-Île de France par email dpo.pidf@immodefrance.com ou par courrier, à Immo de France Paris-Île de France - Siège 67-69 boulevard Bessieres CS 35260 75176 Paris cedex 17, accompagnée d’un justificatif d'identité. En cas d'insatisfaction, vous pouvez adresser une réclamation à la CNIL. Vous avez le droit de vous opposer au démarchage téléphonique en inscrivant gratuitement votre numéro de téléphone fixe / mobile sur le site www.bloctel.gouv.fr ou par courrier à l’adresse suivante : Société Opposetel, Service Bloctel, 6 rue Nicolas Siret, 10 000 Troyes. Pour plus d'informations consulter nos Mentions légales et notre Politique de confidentialité

Nous vous accompagnons pour réaliser
au mieux votre projet immobilier

IMMO de France Île-de-France Cergy

18 place de Cerclades

95000 - Cergy

Horaires, équipes Nous appeler Nous contacter Localiser l'agence
t Alerte mail 4 Ma sélection j Simulateur de prêt
cookie